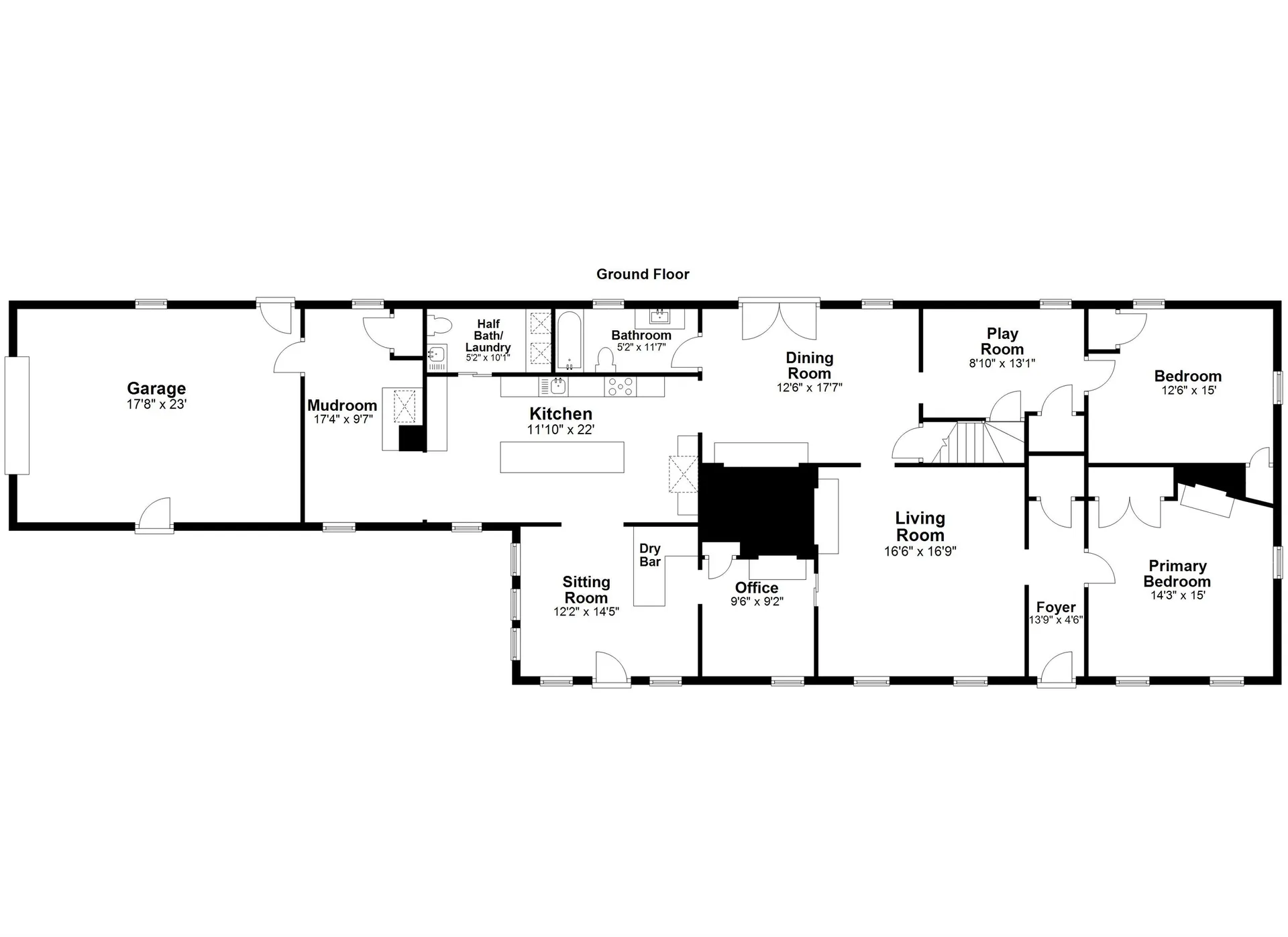
Welcome to this fully renovated farmhouse where classic charm meets modern elegance. Formerly the historic Tilton Tavern, this special home is nestled in a nature lover's paradise surrounded by Bear Brook State Park. Inside, the designer kitchen is the heart of the home, featuring quartz countertops, custom cabinetry, farmer's sink, large island, & bronze hood accent. The home's heritage shines through w/ wide plank wood floors, 3 brick fireplaces, & exposed wood beams. The layout includes a cozy sitting room with bar, mudroom, spacious dining and family rooms, plus a flexible office and playroom - both that could easily be used as bedrooms. Two beautifully updated bathrooms complete the main level. Upstairs, private guest quarters offer a peaceful retreat with 3/4 bath and attic storage. Comfort is ensured with new mini-split A/C, updated electrical and plumbing, new siding, windows, roof, driveway, and a standby generator. NEW 32 X 36 barn with two 12' lean-tos and nearly finished bonus room w/ heat & AC offering an add'l 575 (+/-) sq/ft - ideal for gym or home office. Outside, enjoy a firepit, patio, shed, irrigation system, & lush landscaping - perfect for entertaining or relaxing. All centrally located near Concord, Manchester, and I-93, w/ unmatched access to hiking, biking, snowmobiling, & more across 11,000+ acres of Bear Brook State Park. More than a home, this is a lifestyle! Please see extensive improvements list. Showings start at first open house Sat 9/6 11 -1 AM

Listing Tools

Property Details of 24 Deerfield Road

Property Details

Interior Features

Exterior Features

Utilities and Appliances

Community

Map Location

Broker Reciprocity 

Copyright 2025 PrimeMLS, Inc. All rights reserved. This information is deemed reliable, but not guaranteed. The data relating to real estate displayed on this display comes in part from the IDX Program of PrimeMLS. The information being provided is for consumers’ personal, non-commercial use and may not be used for any purpose other than to identify prospective properties consumers may be interested in purchasing. Data last updated November 10, 2025 2:22 AM EST

 

Hi there! How can we help you?

Contact us using the form below or give us a call.

Send Us A Message:

I agree to receive marketing and customer service calls and text messages from Bean Group. To opt out, you can reply 'stop' at any time or click the unsubscribe link in the emails. Consent is not a condition of purchase. Msg/data rates may apply. Msg frequency varies. Privacy Policy.

Do not fill in this field:

This site is protected by reCAPTCHA and the Google Privacy Policy and Terms of Service apply.