Year-round waterfront home on Coffee Pond! Tucked near the end of a quiet dead-end road, this fully updated gem features sandy frontage with a gentle slope and private dock-perfect for swimming, kayaking, and motorboating. Inside, enjoy a modern kitchen with lifetime warranty cabinets, custom lighting, gorgeous bathroom, and a stunning primary suite with walk-in closet. A large deck off the kitchen offers water views, with a welcoming front deck too. Newer heating and hot water systems, new roof 2011, and 2019 septic leach field redone to offer peace of mind. Detached double garage with bunkhouse space above is perfect for guests. Close to Sebago Lake, Hacker's Hill & Pleasant Lake. IF NO VIDEO LINK IS AVAILABLE, INQUIRE TO RECEIVE ONE!

Listing Tools

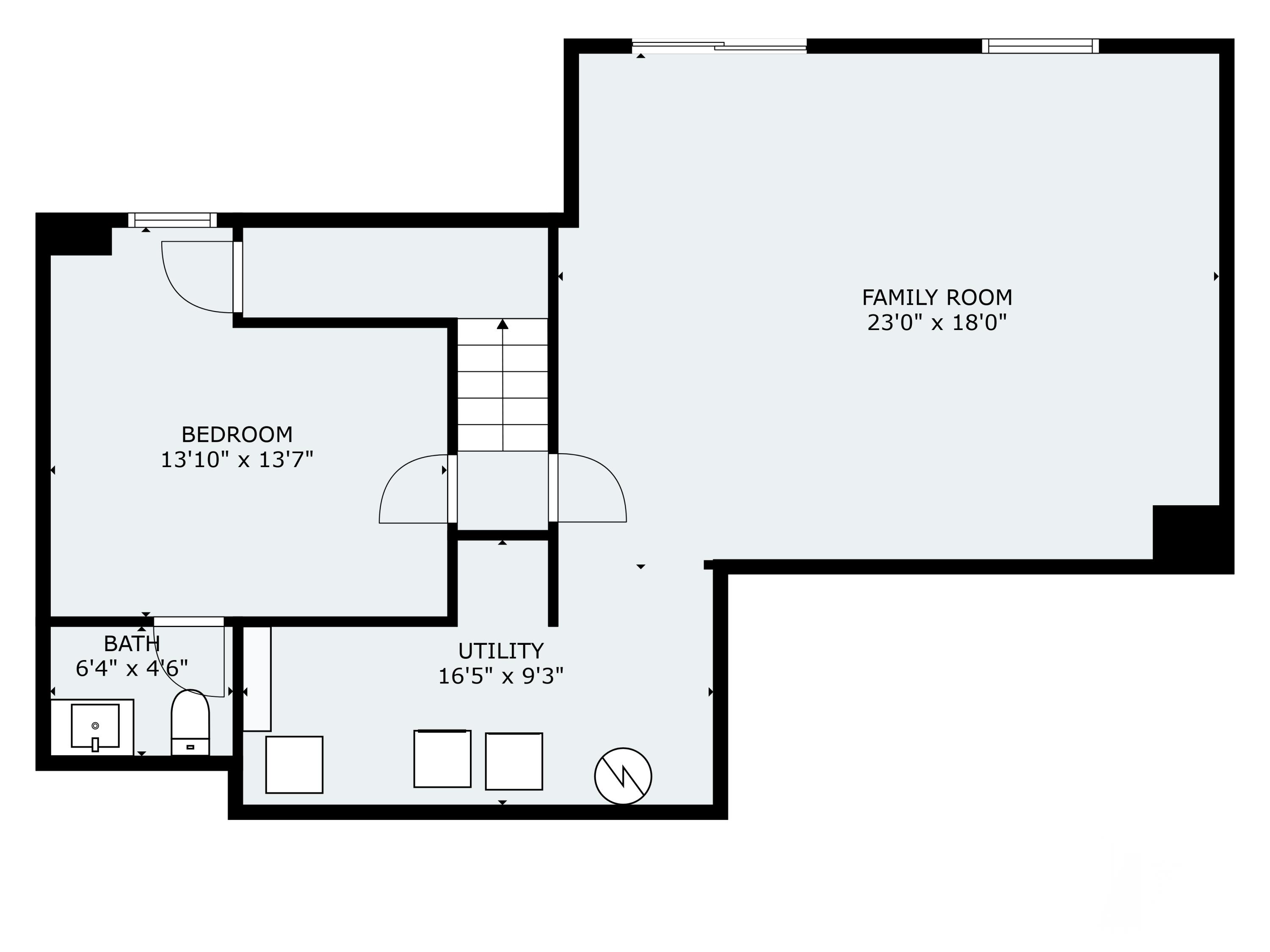
Property Details of 76 Puckerbrush Trail

Property Details

Interior Features

Exterior Features

Utilities and Appliances

Map Location

Listing data is derived in whole or in part from the Maine IDX & is for consumers' personal, non commercial use only. Dimensions are approximate and not guaranteed. All data should be independently verified. ©2026 Maine Real Estate Information System, Inc. All Rights Reserved. equal opportunity housing logo   Privacy Policy

Bean Group participates in ©2026 Maine Listings Internet Data Exchange program, allowing us to display other Maine IDX Participants' listings. This website does not display complete listings. Certain listings of other real estate brokerage firms have been excluded. Mortgage figures are estimates. Check with your bank or proposed mortgage company for actual interest rates. This product uses the FRED® API but is not endorsed or certified by the Federal Reserve Bank of St. Louis.

Hi there! How can we help you?

Contact us using the form below or give us a call.

Send Us A Message:

I agree to receive marketing and customer service calls and text messages from Bean Group. To opt out, you can reply 'stop' at any time or click the unsubscribe link in the emails. Consent is not a condition of purchase. Msg/data rates may apply. Msg frequency varies. Privacy Policy.

Do not fill in this field:

This site is protected by reCAPTCHA and the Google Privacy Policy and Terms of Service apply.