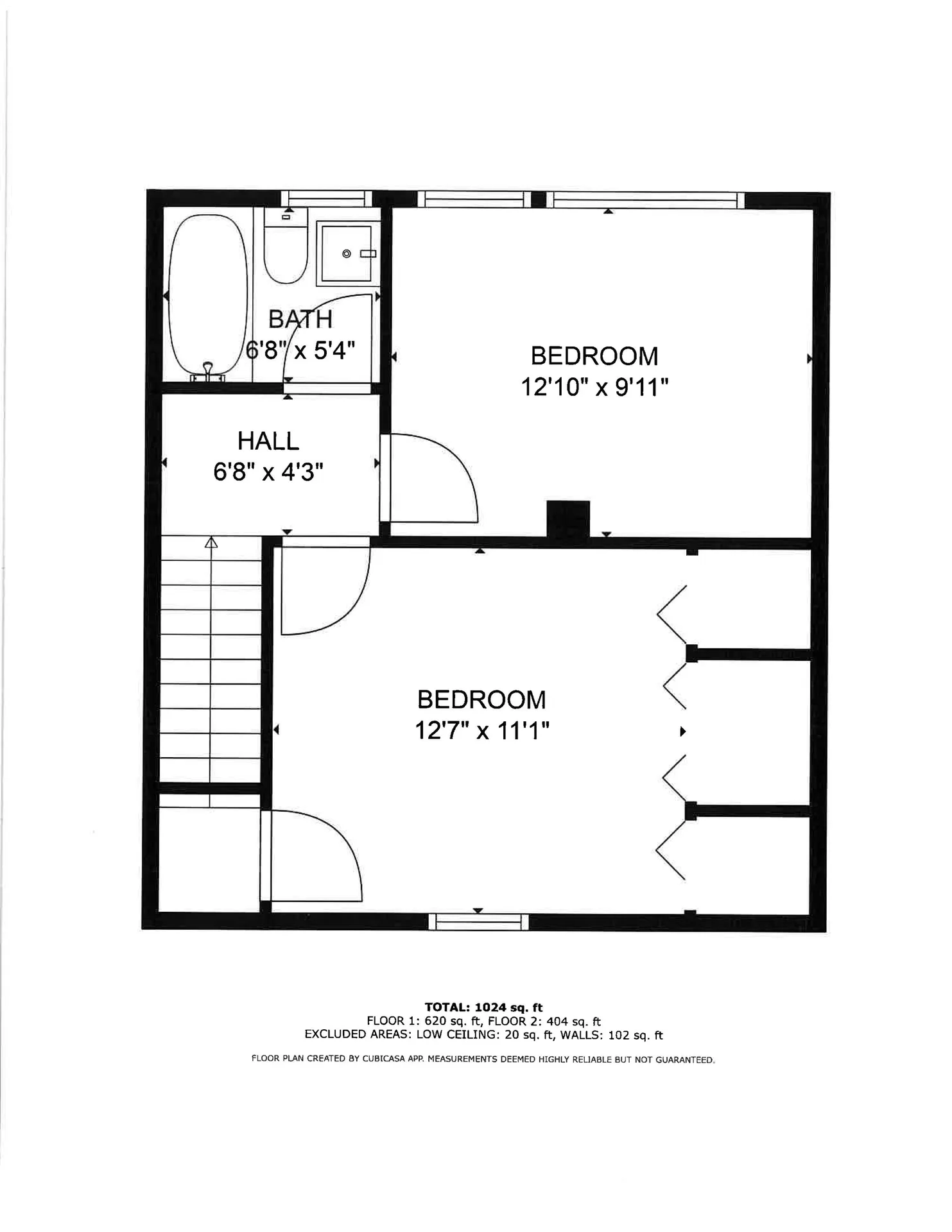
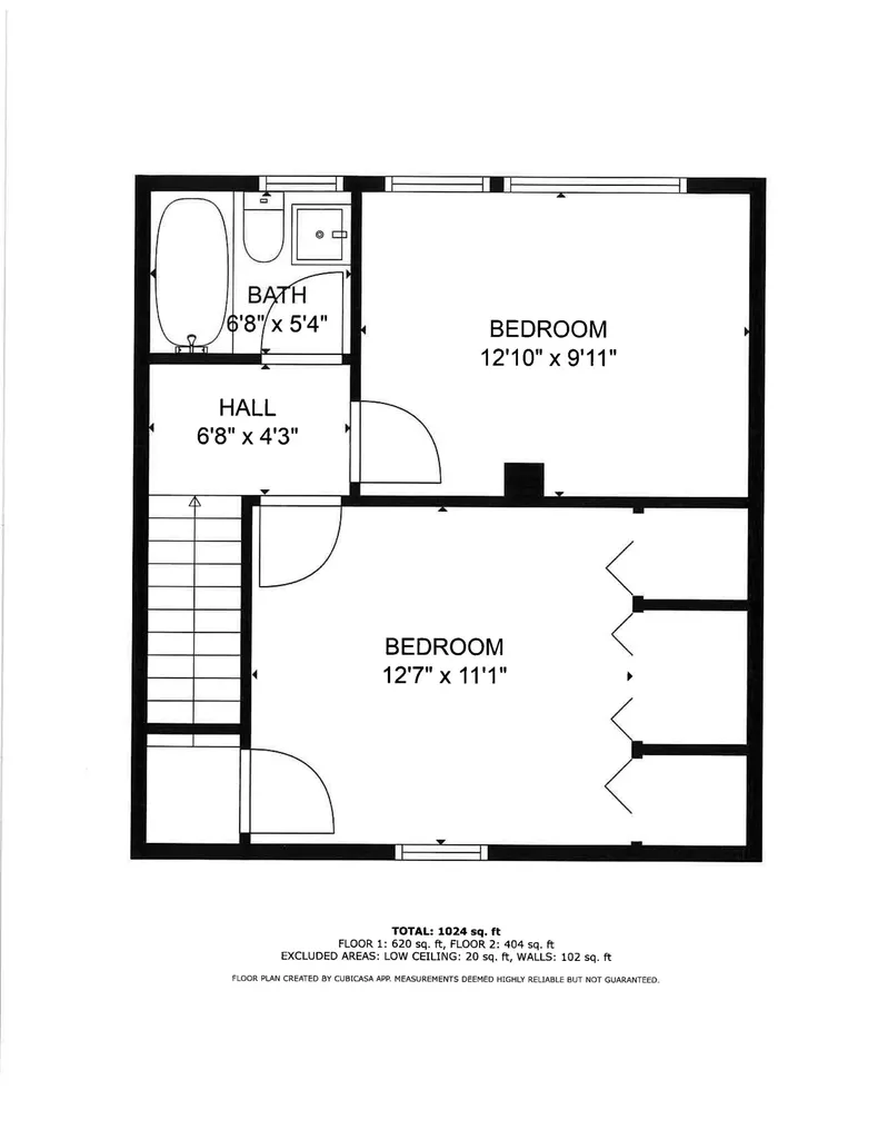
The house was formerly owned by the artist Jean Bartoli. Although born and raised in Berlin, Bartoli spent many years in Italy carving marble, casting bronze and painting frescos. His work is in art collections as far away as Australia and he has shown throughout Europe, including two exhibitions in Paris. One of his studios is an adjunct building that is part of the property. The studio is insulated, has a wood stove and large windows. It is faced in hand-cut NH granite. This six-room two- or three-bedroom home with detached garage and studio would make a great first or second home. The first floor offers an eat-in kitchen with appliance, living room and either a family room or first floor bedroom. Upstairs feature two bedrooms with a full bath. The primary bedroom has beautiful view of Berlin and the distant mountains. This home is a must see to be fully appreciated.

Listing Tools

Property Details of 770 Fourth Avenue

Property Details

Interior Features

Exterior Features

Utilities and Appliances

Community

Map Location

Broker Reciprocity 

Copyright 2025 PrimeMLS, Inc. All rights reserved. This information is deemed reliable, but not guaranteed. The data relating to real estate displayed on this display comes in part from the IDX Program of PrimeMLS. The information being provided is for consumers’ personal, non-commercial use and may not be used for any purpose other than to identify prospective properties consumers may be interested in purchasing. Data last updated November 10, 2025 11:22 PM EST

 

Hi there! How can we help you?

Contact us using the form below or give us a call.

Send Us A Message:

I agree to receive marketing and customer service calls and text messages from Bean Group. To opt out, you can reply 'stop' at any time or click the unsubscribe link in the emails. Consent is not a condition of purchase. Msg/data rates may apply. Msg frequency varies. Privacy Policy.

Do not fill in this field:

This site is protected by reCAPTCHA and the Google Privacy Policy and Terms of Service apply.