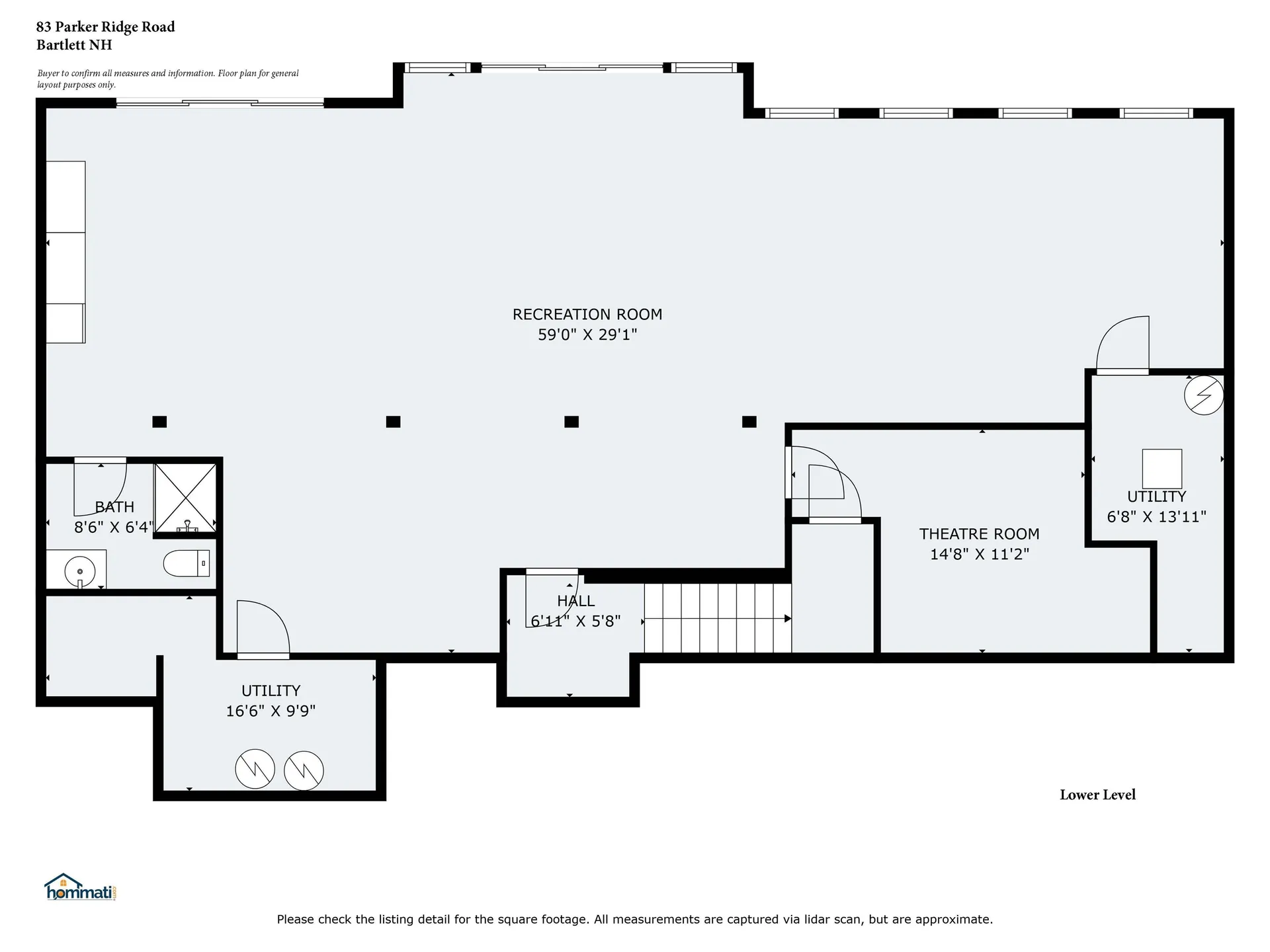
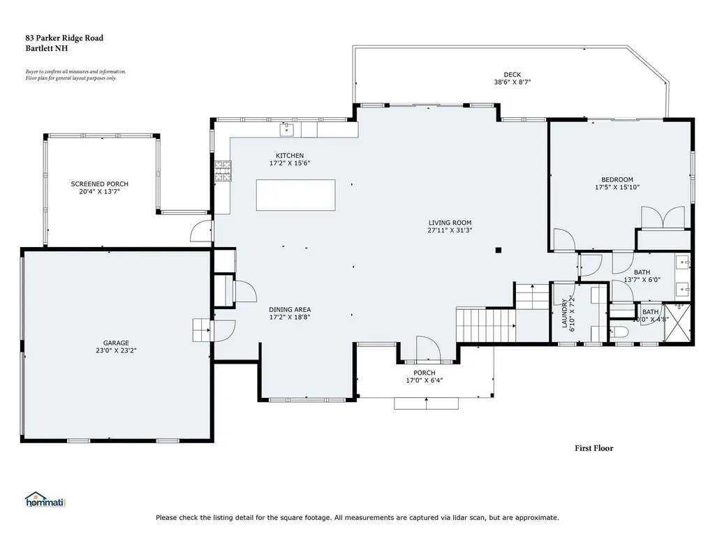
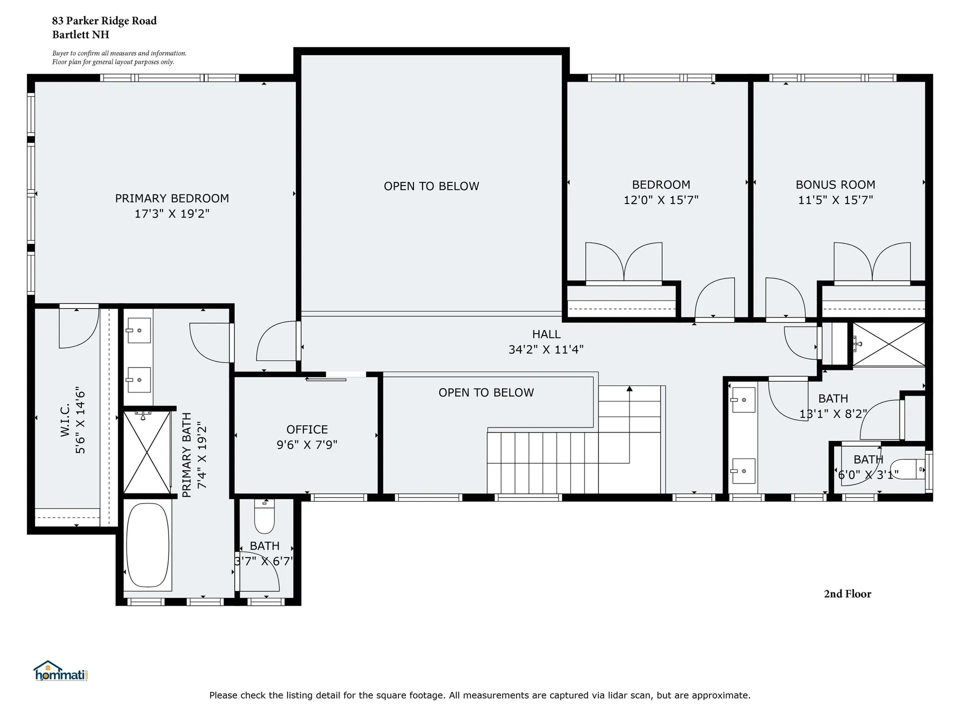
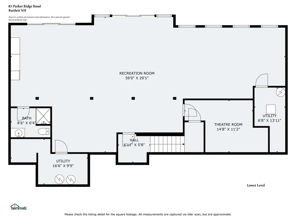
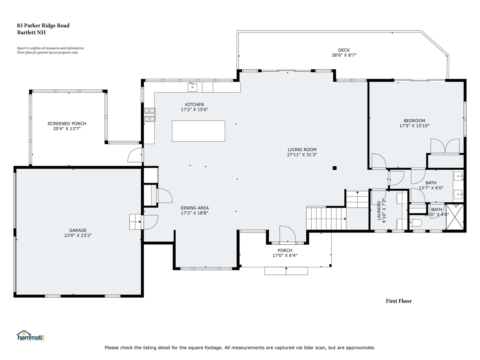
Beautiful mountain views from this newly constructed home just completed in 2024. Over 5000 square feet of space on three levels. Walk into the great room featuring a cathedral ceiling in the main living room, and sliders to the deck facing the view. There is a large chef's kitchen with top of the line appliances, including a Viking gas range, ample counter space, a separate pantry and access to a screened in porch for after dinner drinks. The dining area comfortably seats 10 - this home was made for entertaining. The first floor bedroom has an en suite bath with access to the first floor laundry and there is a second primary bedroom upstairs, both with mountain views. The third bedroom also faces the mountains and is next to a bonus room that would make a great playroom. The office is off the upper hallway and allows you to look out to the mountains while you work. On the lower level is a family game room with many possibilities, another bath and a home theatre complete with theater seating. This level has a walkout to the firepit area behind the home on this corner lot that enjoys added privacy as it was merged with the lot in front of it to protect the view. Located near hiking trails, the Saco River, nearby skiing at Attitash Mountain and a short trip to North Conway Village for in town shopping. A truly remarkable home. Buyers to confirm all measures and information.

Listing Tools

Property Details of 83 Parker Ridge Road

Property Details

Interior Features

Exterior Features

Utilities and Appliances

Community

Map Location

Broker Reciprocity 

Copyright 2025 PrimeMLS, Inc. All rights reserved. This information is deemed reliable, but not guaranteed. The data relating to real estate displayed on this display comes in part from the IDX Program of PrimeMLS. The information being provided is for consumers’ personal, non-commercial use and may not be used for any purpose other than to identify prospective properties consumers may be interested in purchasing. Data last updated November 10, 2025 2:37 AM EST

 

Hi there! How can we help you?

Contact us using the form below or give us a call.

Send Us A Message:

I agree to receive marketing and customer service calls and text messages from Bean Group. To opt out, you can reply 'stop' at any time or click the unsubscribe link in the emails. Consent is not a condition of purchase. Msg/data rates may apply. Msg frequency varies. Privacy Policy.

Do not fill in this field:

This site is protected by reCAPTCHA and the Google Privacy Policy and Terms of Service apply.