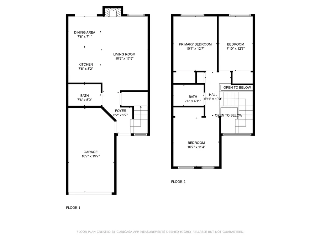
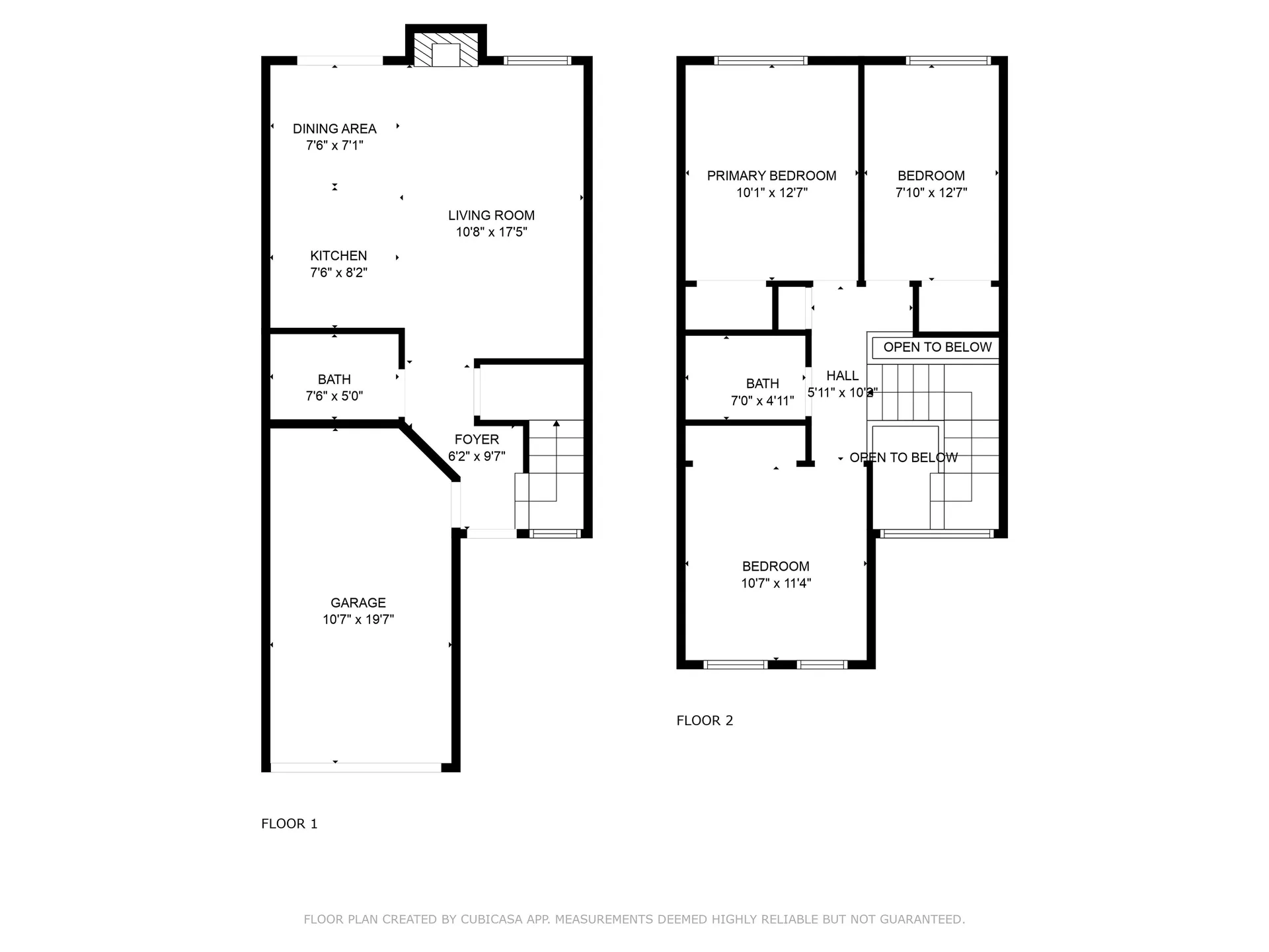
Rare Duplex Opportunity - Live, Invest, or Both! Don't miss this well-maintained duplex in excellent condition, offering versatility, modern upgrades, and an unbeatable location. Each side features 3 bedrooms and 1.5 baths, with spacious layouts designed for comfort and convenience. The first floor welcomes you with a bright, airy foyer that flows into an open-concept living, dining, and kitchen space. One unit has been fully renovated with new appliances, stone countertops, and updated cabinetry, while both units feature sliders leading to private stone patios. Each side also includes a half bath with laundry, plus the convenience of an attached one-car garage. Upstairs, you'll find three bedrooms and a full bath in each unit, perfect for family or guests. Both sides are equipped with mini-splits for efficient heating and cooling year-round. Outside, enjoy over 2 level acres, a storage shed, and plenty of space for play, gardening, or relaxation. Whether you're looking for a smart investment, multi-generational living, or the chance to let one side help pay your mortgage while you enjoy the other, this property checks every box. Just minutes from ski resorts, hiking trails, boating, snowmobiling, and more, this duplex puts four-season recreation at your doorstep.

Listing Tools

Property Details of 99 Pinnacle Road

Property Details

Interior Features

Exterior Features

Utilities and Appliances

Community

Map Location

Broker Reciprocity 

Copyright 2025 PrimeMLS, Inc. All rights reserved. This information is deemed reliable, but not guaranteed. The data relating to real estate displayed on this display comes in part from the IDX Program of PrimeMLS. The information being provided is for consumers’ personal, non-commercial use and may not be used for any purpose other than to identify prospective properties consumers may be interested in purchasing. Data last updated November 10, 2025 5:23 PM EST

 

Hi there! How can we help you?

Contact us using the form below or give us a call.

Send Us A Message:

I agree to receive marketing and customer service calls and text messages from Bean Group. To opt out, you can reply 'stop' at any time or click the unsubscribe link in the emails. Consent is not a condition of purchase. Msg/data rates may apply. Msg frequency varies. Privacy Policy.

Do not fill in this field:

This site is protected by reCAPTCHA and the Google Privacy Policy and Terms of Service apply.